Comparer les annonces

Immeuble à la Zone d’Activités du Kram

Zone d'activité Kheireddine, La Goulette, Gouvernorat de Tunis, Tunisie
2,450,000 DT

Description

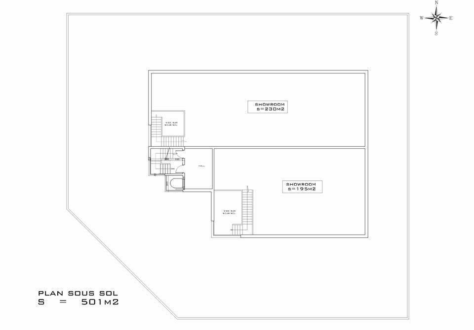
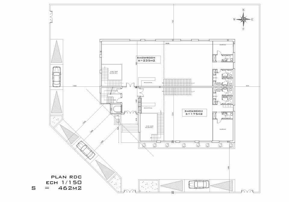
ZONE D’ACTIVITÉS LAC (Le Kram) : A Vendre Immeuble en cours de construction, édifié sur un Terrain d’angle de 1.480 m2.
La superficie couverte est d’environ 2.000 m2.
Composé d’un sous sol, d’un Rdc double hauteur (possibilité mezzanine) et de 2 Étages.
Idéal pour plusieurs types d’activités : Showroom, Siège de société, Call Center, Ecole Privée, Industrie,…
Emplacement stratégique. Titre Foncier en règle. Très Belle Opportunité.

Planifier une visite

Vos informations

  • Adresse: Zone d'activité Kheireddine, La Goulette, Gouvernorat de Tunis, Tunisie
  • Ville: Tunis
  • Quartier: Kram
  • Pays: Tunisie

Détail

Mis à jour le avril 10, 2019 à 9:58 am

  • Référence du bien: 4031
  • Prix: 2,450,000 DT
  • Surface: 2000 m2
  • Aire d'atterrissage: 1480 m2
  • Chambres: 8
  • Salles de bain 6
  • Taille du garage: SqFt
  • Type de bien: Bureau, Immeuble, Investissement
  • Statut: A Vendre

Informations de contact

IMMO CONSEIL
IMMO CONSEIL
+216 27 315 315

Enquire about this property